Inovatívne rozšírenie turistickej ponuky v Osadnom

Inovatívne rozšírenie turistickej ponuky v Osadnom

Turistická ponuka v okolí Osadného je už v súčasnosti bohatá, nachádzajú sa tu rôzne prírodné a kultúrne zaujímavosti. Zaujímavosťou priamo v obci je Krypta Osadné, v ktorej sú pozostatky 1025 vojakov z Prvej svetovej vojny. Nachádza sa pod oltárnou časťou pravoslávneho chrámu Vznesenia Hospodinovho. Je najväčším takýmto podchrámovým pohrebiskom na Slovensku.

Nad obcou Osadné prebieha západná hranica Národného parku (NP) Poloniny, ktorého územie tu susedí s územím Chránenej krajinnej oblasti (CHKO) Východné Karpaty. Horný tok rieky Udavy so svojimi prítokmi tu spätnou eróziou posúva rozvodnicu morí, pričom v budúcnosti tu prostredníctvom javu riečneho pirátstva dôjde k ukoristeniu a presmerovaniu vôd poľskej Slinky do povodia slovenskej Udavy. V doline sa nachádza kráľovstvo jedlí, jedľovo – bukové lesy a pralesy chránené v Prírodnej rezervácii (PR) Udava, pariace k najkrajším v NP Poloniny. Vláda SR schválila návrh na modifikáciu hranice svetového prírodného dedičstva UNESCO, ktorý čaká na schválenie Výborom pre svetové dedičstvo pri UNESCO, čo bude najskôr v roku 2021. Podľa tohto návrhu súčasťou lokality bude práve aj komponent Udava, v k. ú. Osadné a Hostovice. Územie je sprístupnené žltým turistickým chodníkom (TCH) č. 8819 vymedzený na trase Osadné – Ďakov – Balnica. Chodník je zároveň cezhraničným lesníckym náučným chodníkom Udava – Solinka, ktorého zriaďovateľom sú Lesy SR, š. p. Trasa vedie na hlavný karpatský hrebeň, kde sa nachádza peší turistický hraničný priechod do Poľska – Balnica, ktorý je zároveň železničnou stanicou Bieščadskej úzkokoľajky. Bieščadská úzkokoľajka bola postavená v r. 1895 a viedla z Lupkova do Cisny. Po rozpade Rakúsko – Uhorska sa celá trasa trate ocitla na území Poľska, okrem dvojkilometrového úseku, ktorý bol v Československu. Tento úsek bol v r. 1939 odstúpený Poľsku. Slúžila na prepravu vyťaženého dreva. V 70. rokoch 20. storočia sa jej význam strácal a postupne chátrala. K jej obnove došlo v roku 1997. V súčasnosti je technickou pamiatkou a vyhľadávanou turistickou atrakciou.

 

Vďaka lokalizácii Bieščadskej úzkorozchodnej železnice v slovensko – poľskom pohraničí, vznikol nápad na vytvorenie spoločného poľsko-slovenského produktu cestovného ruchu na báze existujúcich a zaniknutých lesných úzkokoľajových železníc v Karpatoch. Obec Osadné tak spolu so svojimi partnermi Fundacja Bieszczadzkiej Kolejki Lešnej Cisna (PL) a Obec Zemplínske Hámre (SK) získala podporu z Program cezhraničnej spolupráce V – A Poľsko – Slovensko 2014-2020 v rámci projektu: „Karpatské koľajky – po stopách úzkokoľajových železníc v Karpatoch“.

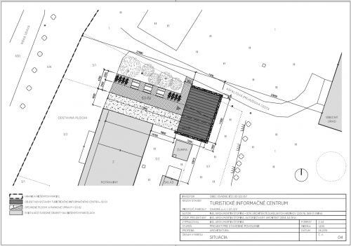
V Osadnom sa tak môžeme tešiť na nové turistické informačné centrum, na novú mobilnú aplikáciu s rozšírenou realitou pre úzkokoľajku Osadné – Udava a ekologické turistické prepojenie medzi Slovenskom a Poľskom systémom bikesharing,  ktoré majú byť financované zo spomínaného projektu. http://www.osadne.ocu.sk/sk/-novinky Podľa uverejnenej výzvy na predkladanie ponúk verejného obstarávania je predpokladaný termín začatia stavby 03/2021 a termín ukončenia 07/2021. http://www.osadne.ocu.sk/sk/-profil-verejneho-obstaravatela

 

V uplynulých dňoch Správa NP Poloniny posudzovala návrh ekologického turistického prepojenia medzi Slovenskom a Poľskom systémom bike-sharing. Plánované turistické informačné centrum bude mať aj miestnosť slúžiacu ako sklad bicyklov na tieto účely. Systém bikesharingu (tzv. zdieľanie bicykla) umožňuje požičanie bicykla na viacerých stanovištiach. Práve premyslený systém možností dostupnosti na viacerých miestach odlišuje bikesharing od obyčajných požičovní bicyklov. Bicykle sú voľné dostupné na určených stanovištiach, za použitie bicykla používateľ po registrácii platí napr. internetbankingom v mobile.

Väčšina turistických chodníkov v NP Poloniny sa vyznačuje dlhými nástupnými časťami, ktoré kopírujú trasy spevnených (asfaltových) účelových lesných ciest. Tie sú pre turistov nepríjemné, hlavne počas hlavnej letnej turistickej sezóny počas horúčav. Hlavnou myšlienkou bikesharingu je urýchliť presun nepríjemným dlhým úsekom, ktorý v prípade nástupu na TCH č. 8819 Osadné – Balnica predstavuje úsek cca 2300 m. Na konci úseku trasy v blízkosti hranice PR Udava pred závorou,  sú v pláne stojany na bicykle bikesharingu.  Keďže trasa prechádza územím Národného parku Poloniny s tretím stupňom ochrany, je tu podľa zákona č. 543/2002 Z. z. o ochrane prírody a krajiny zakázané vchádzať alebo jazdiť bicyklom mimo vyznačenej cyklotrasy. Zriadenie oficiálnej cyklotrasy nie je v pláne, pretože by sa musel meniť Návštevný poriadok NP Poloniny, ktorý plánuje Správa NP Poloniny meniť komplexne až v neskoršom období.

Preto sme sa v tomto prípade rozhodli využiť legislatívnu možnosť a Okresný úrad v sídle kraja v Prešove vyhradí miesta pre vchádzanie alebo jazdu na bicykli, v  katastrálnom území Hostovice na parcelách KN C č. 2631, 2634 a katastrálnom území Osadné na parcelách KN C č.736, 737/2, 739, 797/2 ich uverejnením v zozname na svojej úradnej tabuli, webovom sídle a na úradnej tabuli dotknutých obcí. Takto bude môcť Obec Osadné v rámci bikesharingu v časovom období 10 rokov na tejto trase prevádzkovať 10 ks bicyklov.

Bikesharing je plánovaný v  časti územia NP Poloniny, ktorá je zároveň súčasťou európskej sústavy chránených území Natura 2000, konkrétne Chráneného vtáčieho územia Bukovské vrchy a Územia európskeho významu Bukovské vrchy. Zákon o ochrane prírody a krajiny č. 543/2002 Z. z. v znení neskorších predpisov venuje ochrane území Natura 2000 osobitnú pozornosť. K schváleniu navrhovanej činnosti podľa tohto zákona bolo potrebné záväzné stanovisko Správy NP Poloniny, ktorá v rámci zákonne stanoveného postupu vypracovala aj formuláre pre zisťovacie konanie, tzv. „screening“ . Prostredníctvom takýchto formulárov sa pri plánovaných činnostiach v územiach Natura 2000, vyhodnocuje významnosť ich vplyvu na predmet ochrany týchto území.  Stanovisko Správy NP Poloniny je k bikesharingu kladné. Navrhovanú plánovanú aktivitu Správa NP Poloniny podporuje, pretože je v súlade s opatreniami v Programe starostlivosti o Národný park Poloniny na roky 2017 – 2026,ktoré sú stanovené v Prílohe č. 6.6.13 (PDF; 242 kB) Opatrenia na dosiahnutie cieľov starostlivosti v Národnom parku Poloniny:

  • 1.6. Vytvoriť a zlepšiť služby pre turistov (ubytovacie a stravovacie služby, jazda na koni, požičovňa lyží, bicyklov a pod.)
  • 1.11. Zriadenie požičovne bicyklov
  • 1.4. Výstavba informačných stredísk

Tešíme sa na úspešné zavŕšenie projektu, v rámci ktorého čaká obec Osadné ešte veľký kus práce. Výsledky projektu však stoja za to, vznikne cyklus produktov propagujúcich históriu regionálnych železničiek moderne a pútavo.

Zuzana Bartušová